Dom na sprzedaż w górach, w jednej z najpiękniejszych wsi w Istebnej (Istebna 1036 jak na mapce), która zachwyca kulturą, naturą i autentycznością.
Dom w którym możesz mieszkać i zarabiać.
Marzysz o własnym domu w sercu Beskidu Śląskiego, w miejscu gdzie spokój łączy się z bliskością natury. Ta wyjątkowa nieruchomość w gorach może być Twoja!
Dom wolnostojący o powierzchni całkowitej około 260 m², położony na przestronnej i widokowej działce 1237 m² w drugiej linii zabudowy, dojazd utwardzony, położenie nieruchomości oferuje komfort i prywatność. Przestronny, funkcjonalny układ pomieszczeń gwarantuje wygodę oraz zapewnia komfort wypoczynku i rekreacji.
Układ domu:
Parter: przestronny przedpokój z klatką schodową, przestronna kuchnia, 2 sypialnie, łazienka, pomieszczenie gospodarcze dostępne z zewnątrz idealne na narzędzia i sprzęt sportowy, kotłownia z wyjściem na zewnątrz budynku..
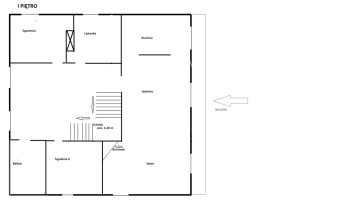
Piętro: 2 sypialnie, łazienka, strefa dzienna: salon z kominkiem połączony z częścią jadalnianą i kuchnią, dwa balkony z czego jeden z nich rozciąga się wzdłuż całej fasady domu, oferując zachwycający widok na wschodnio-południową panoramę Istebnej i okoliczne góry.
Poddasze: część rekreacyjna, łazienka, pomieszczenie przeznaczone na WC i dodatkowa przestrzeń gospodarcza – świetne miejsce na relaks, hobby lub wydzielenia dwóch dodatkowych sypialni.
Standard i wyposażenie:
Budynek murowany, z grubych, solidnych murów z cegły, co zapewnia trwałość i dobrą izolację termiczną. Dom ocieplony styropianem 10 cm, posiada wymienione okna PCV oraz dach pokryty blachą.
Instalacje elektryczna, wodno-kanalizacyjna i grzewcza są w dobrym stanie technicznym. Mury są suche, a konstrukcja budynku – stabilna i solidna, co pozwala na szybkie wprowadzenie się lub przeprowadzenie modernizacji według własnych potrzeb. Dom w ostatnim czasie nie był zamieszkały i wymaga odświeżenia.
Atuty lokalizacji:
Dom położony jest poniżej kompleksu Hotelowego Srebrny Bucznik, w pobliżu ośrodków narciarskich Złoty Groń i Zagroń ( 5 min samochodem), licznych tras turystycznych i malowniczych lasów. To doskonała propozycja zarówno dla rodziny szukającej komfortowego miejsca do życia, jak i inwestorów planujących wynajem turystyczny.
pomiędzy numerami Istebna 986 a 1018,
poniżej Kompleksu Hotelowego Bucznik,
przy głównej drodze przebiegającej przez Istebną.
Ze względu na błędne oznaczenia w mapach online, w razie zainteresowania prosimy o kontakt — chętnie prześlemy dokładną lokalizację (np. pinezkę GPS).
Potencjał inwestycyjny:
Nieruchomość idealnie nadaje się zarówno do zamieszkania, jak i pod wynajem. Układ budynku umożliwia łatwe wydzielenie dwóch niezależnych apartamentów.
Dodatkowym atutem jest duża działka, na której – przy odpowiednim zagospodarowaniu – można postawić nawet dwa domki rekreacyjne lub całoroczne pod wynajem, co znacząco zwiększa potencjał inwestycyjny nieruchomości.
Oferta na wyłączność
Zainteresowanych prosimy o kontakt z agentem w celu uzyskania dodatkowych informacji oraz umówienia się na prezentację nieruchomości.
Martex Consulting Nieruchomości
44-300 Wodzisław Śląski, ul. Wałowa 44
Telefon: 698 216 513
E-mail: m.toman@martexconsulting.pl
m.bledowska@martexconsulting.pl



