Lokalizacja: powiat rybnicki w kierunku wylotu na Racibórz przy ul. Rybnickiej ( do centrum Raciborza 15 km, centrum Rybnika 15 km, Autostrada A4 30 km)
Dojazd: Utwardzona droga, brama wjazdowa, plac wybrukowany
Media: Woda, kanalizacja, energia elektryczna – wszystkie przyłącza na terenie, instalacja fotowoltaiczna, ogrzewanie własne - piec na drewno
Budynek:
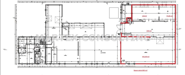
Możliwość wynajęcia mniejszej lub większej powierzchni, dodatkowo można wynająć pomieszczenia biurowo-socjalne, stan techniczny obiektu – bardzo dobry.
Działka: Ogrodzona, regularny kształt, teren płaski z dostępem do drogi publicznej.
Atuty: infrastruktura techniczna, utwardzone nawierzchnie, lokalizacja w strefie przemysłowej.
Potencjał: idealna pod produkcję, magazyn, siedzibę firmy
Wymagana kaucja zabezpieczająca
Więcej informacji u agenta.
Zainteresowanych zapraszamy do kontaktu.
Martex Consulting Nieruchomości
44-300 Wodzisław Śląski, ul. Wałowa 44
Telefon: 698 216 513
E-mail: m.toman@martexconsulting.pl
m.bledowska@martexconsulting.pl



